摘要:最新改水电工程正在进行,旨在打造安全舒适的居住环境。通过改进水电设施,提高居住的安全性和便利性,确保居民用电用水无忧。此次改水电工程将重点关注安全性和质量,确保电线电缆、水管等材料的选用符合国家相关标准,为居民提供更加安全可靠的居住环境。
本文目录导读:
1、水电改造的重要性
2、最新改水电趋势与要点
3、最新改水电操作指南
4、案例分析
5、注意事项
6、(强电部分)详解
7、(弱点部分)详解
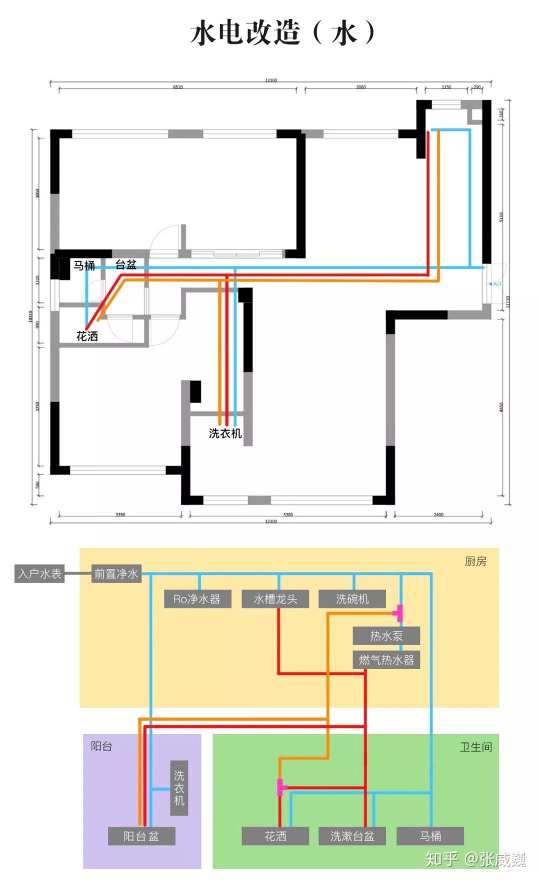
8、(给排水部分)详解
在现代社会,水电改造已成为家居装修不可或缺的一部分,随着科技的飞速发展和人们对居住环境安全舒适的追求,水电系统的改造升级显得尤为重要,本文将为您深入解析最新改水电的知识,从基本概念到实际操作,带您全面了解如何打造安全舒适的居住环境。
水电改造的重要性
水电改造是家居装修的核心环节,关乎家庭生活的各个方面,一个安全、可靠的水电系统不仅能保障家庭电器的正常运行,还能有效预防安全隐患,提升居住舒适度,进行水电改造是非常必要的。
最新改水电趋势与要点
1、智能化:紧跟智能家居潮流,实现水电系统的远程控制、定时开关等功能,提升生活的便捷性。
2、节能环保:采用节能型电器、LED照明等,降低能耗,实现绿色环保。
3、安全可靠:选用高质量材料,严格遵循施工规范,确保水电系统的安全可靠性。
4、布局合理:根据家庭实际需求,合理规划水电布局,提升居住舒适度。
最新改水电操作指南
1、设计规划:改造前,根据家庭实际需求,进行详尽的设计规划,确定水电布局。
2、材料选择:选用优质的水电材料,确保安全可靠性。
3、施工规范:聘请专业施工团队,严格按照规范施工,确保质量。
4、验收标准:改造完成后,进行严格的验收,确保无安全隐患。
案例分析(可添加更多实际案例)
1、张先生家水电改造案例:张先生通过水电改造,成功实现了智能化控制,使用了节能型电器,降低了能耗,居住环境更加舒适安全。
2、王女士家水电改造心得分享:王女士注重选材和施工质量的把控,选择了优质材料,聘请了专业团队,改造后的水电系统更加安全可靠。
注意事项
1、选择专业施工团队,确保改造质量。
2、选材要优质,确保安全可靠性。
3、严格遵守施工规范,确保施工质量。
4、改造完成后,要进行严格的验收,确保无安全隐患。
(强电部分)详解
在强电部分,电缆与开关盒的选择至关重要,选用高质量的电缆和开关盒,能够确保电力系统的稳定运行,插座与照明的布局也要根据家庭实际需求进行合理规划,提高居住的便捷性和舒适度。
(弱点部分)详解
随着互联网的普及,家庭网络安全越来越受到关注,在水电改造过程中,要注重网络线路的安全与稳定,电视、音响等视听设备的线路规划也要合理,确保美观且方便使用。
(给排水部分)详解
选用优质的管道材料,确保水质安全,厨房、卫生间等区域的防水处理要到位,防止漏水、渗水等问题。
最新改水电是打造安全舒适居住环境的关键,通过智能化、节能环保、安全可靠等要点的改造,我们的生活将变得更加便捷,能耗降低,家庭生活环境更加安全舒适。



还没有评论,来说两句吧...